Refine Search

Lot 7 Eagle Drive, Ammon, ID 83406

$345,000
  • Lot 7 Eagle Drive, Ammon, ID 83406 Main Photo

7 Total Photos [Click to View All]

Active
LOT SIZE 0.230 acres MLS#2182207
STATUSActive PROPERTY TYPELand - Commercial SUBDIVISIONEAGLE PARK-BON

Property Description

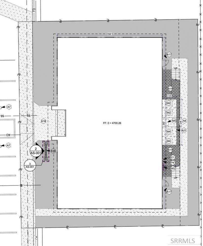
Picture is a rendering. A rare opportunity to develop a pre-approved 9,400 SF commercial building in a prime location. The proposed structure includes approximately 4,700 SF on the main floor and 4,700 SF on the second floor, with building plans included and zoning approvals already in place for development. The flexible design supports a variety of potential uses including professional office, medical, retail or service-based businesses, and flex office configurations, making it suitable for either a multi-tenant layout or single-occupant use. This opportunity is ideal for an owner-user seeking to occupy a portion of the building while leasing the remainder, or for an investor looking to develop a new construction multi-tenant asset in a growing market of the Idaho Falls area.

Lot 7 Eagle Drive | MLS# 2182207

This land located at Lot 7 Eagle Drive, Ammon, ID 83406 is currently listed for sale with an asking price of $345,000. The property has approximately 0.23 Acres. Search Ammon real estate on www.cbidahofalls.com today.

Property Features

Property Type: Land - Commercial
Lot Size: 0.23 Acres
Taxes: $1,834

Feature Descriptions

Days on Site: 51
Parcel #: RPB8820000007O
Sewer: Public Sewer
Water: Public

Listed By / Shown By

Listed By

Agency Name: SVN High Desert Commercial
Agency Phone: 2085358520

Shown By

Agency Title: Coldwell Banker Tomlinson
Agency Phone: (208) 243-7334

IDX logo

Estimate Your Payment

Estimated Payment

$ 1,021.28 per month $767.82 Principal & Interest $152.83 Property Tax $100.63 Homeowner's Insurance

Change Payment Information

%
years/fixed
yearly
yearly (est.)
(Payments are an estimate and may vary by lender)

Login to My Homefinder

Pixel